Đang thực hiện
Giá thiết kê
Menu
Giới thiệu
Công trình đã thi công
1. Nhà 3 gian kẻ truyền bê tông
4. Nhà 4 mái 8 mái kẻ truyền bê tông
2. Nhà 5 gian kẻ truyền bê tông
3. Nhà 2 tầng kẻ truyền bê tông
Tin tức
Liên hệ
Nhà 3 gian 2 mái có Nhà ở, có 2 cung
Nhà 3 gian 2 mái không Nhà ở
Nhà thờ 5 gian 2 mái
Nhà thờ 2 tầng 2 mái
Nhà thờ 2 tầng 4 mái
Nhà thờ 4 mái
Nhà thờ 8 mái
Nhà ở mái Thái mái Nhật
Nhà thờ gỗ
Nhà thờ diện tích nhỏ
Thiết kế đền thờ, đình, chùa
Thiết kế lăng mộ, khu mộ
Nội thất Nhà thờ Đình chùa
Hình ảnh thi công 01
Hình ảnh thi công 02
Hình ảnh thi công 03
Hình ảnh thi công 04
Trang chủ
Nhà thờ 2 tầng 2 mái
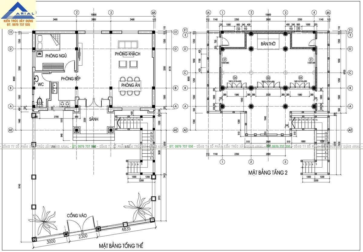
Mẫu 2T2M13. Nhà thờ kẻ truyền bê tông 2 tầng ở Hoa Lư Ninh Bình
Mẫu 2T2M13. Nhà thờ kẻ truyền bê tông 2 tầng ở Hoa Lư Ninh Bình
Giới thiệu
Thông số kỹ thuật
Hướng dẫn sử dụng
Các sản phẩm khác
Mẫu 2T2M12. Nhà thờ 2 tầng cddt chú Lâm ở Hải Dương
Giá: Liên hệ
Mẫu 2T2M11. Nhà thờ 2 tầng cđt anh Tuấn ở Lý Nhân Hà Nam
Giá: Liên hệ
Mẫu 2T2M10. Nhà thờ 2 tầng 2 thang ngoài ở Nam Định
Giá: Liên hệ
Mẫu 2T2M09. Nhà thờ 2 tầng ở Văn Bình Thường Tín Hà Nội
Giá: Liên hệ
Mẫu 2T2M08. Nhà thờ 2 tầng cdt anh Tiến Giáp Nhị Hà Nội
Giá: Liên hệ
Mẫu 2T2M07. Nhà thờ 2 tầng ở Quỳnh Phụ Thái Bình
Giá: Liên hệ
Mẫu 2T2M06. Nhà thờ 2 tầng 2 mái thang bên hồi ở Hạp Lĩnh Tp Bắc Ninh
Giá: Liên hệ
Mẫu 2T2M05. Nhà thờ 2 tầng 2 mái thang bên ngoài ở Yên Viên Hà Nội
Giá: Liên hệ
Giới thiệu
Công trình đã thi công
1. Nhà 3 gian kẻ truyền bê tông
4. Nhà 4 mái 8 mái kẻ truyền bê tông
2. Nhà 5 gian kẻ truyền bê tông
3. Nhà 2 tầng kẻ truyền bê tông
Tin tức
Liên hệ
Thống kê truy cập
Online:
4
Yesterday:
192
Today:
207
Total:
420.565
Trong tháng:
4.452
Trong tuần:
1.110
Bản PC
Hotline: 0979.737.535
Nhắn tin qua zalo
Nhắn tin qua Facebook
Bản đồ đường đi