Đang thực hiện
Giá thiết kê
Menu
Giới thiệu
Công trình đã thi công
1. Nhà 3 gian kẻ truyền bê tông
4. Nhà 4 mái 8 mái kẻ truyền bê tông
2. Nhà 5 gian kẻ truyền bê tông
3. Nhà 2 tầng kẻ truyền bê tông
Tin tức
Liên hệ
Nhà 3 gian 2 mái có Nhà ở, có 2 cung
Nhà 3 gian 2 mái không Nhà ở
Nhà thờ 5 gian 2 mái
Nhà thờ 2 tầng 2 mái
Nhà thờ 2 tầng 4 mái
Nhà thờ 4 mái
Nhà thờ 8 mái
Nhà ở mái Thái mái Nhật
Nhà thờ gỗ
Nhà thờ diện tích nhỏ
Thiết kế đền thờ, đình, chùa
Thiết kế lăng mộ, khu mộ
Nội thất Nhà thờ Đình chùa
Hình ảnh thi công 01
Hình ảnh thi công 02
Hình ảnh thi công 03
Hình ảnh thi công 04
Trang chủ
Nhà 3 gian 2 mái có Nhà ở, có 2 cung
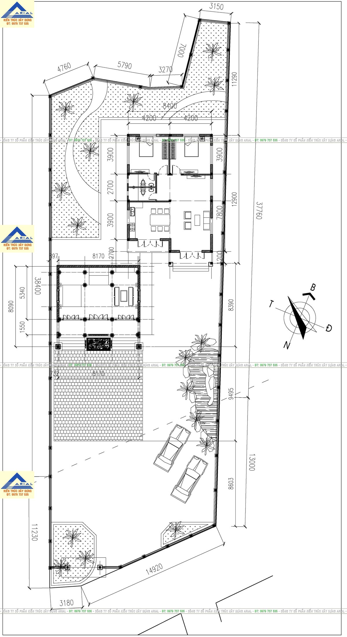
Mẫu 2MNN14. Nhà thờ kẻ truyền bê tông 2 mái 3 gian có nhà ở 1 tầng mái nhật ở phía sau ở Tiên Lữ Hưng Yên
Mẫu 2MNN14. Nhà thờ kẻ truyền bê tông 2 mái 3 gian có nhà ở 1 tầng mái nhật ở phía sau ở Tiên Lữ Hưng Yên
Giới thiệu
Thông số kỹ thuật
Hướng dẫn sử dụng
Các sản phẩm khác
Mẫu 2MNN13. Nhà thờ kẻ truyền bê tông 3 gian ở Xã Tiên Tiến Huyện Phù Cừ Tỉnh Hưng Yên
Giá: Liên hệ
Mẫu 2MTT07. Nhà thờ Tiền tế Hậu cung cđt a Quân ở Quảng Ninh
Giá: Liên hệ
Mẫu 2MNN12. Nhà thờ 2 mái có nhà ở phía sau ở Bắc Giang
Giá: Liên hệ
Mẫu 2MNN11. Nhà thờ cđt anh Phi ở Phủ Lý Hà Nam
Giá: Liên hệ
Mẫu 2MNN10. Nhà thờ cđt chú Dong ở Thái Bình
Giá: Liên hệ
Mẫu 2MNN09. Nhà thờ cđt anh Tiến ở Hải Dương
Giá: Liên hệ
Mẫu 2MNN08. Nhà thờ cđt anh Hiếu ở Yên Mỹ Hưng Yên
Giá: Liên hệ
Mẫu 2MNN07. Nhà thờ cđt anh Huy ở Bắc Giang
Giá: Liên hệ
Giới thiệu
Công trình đã thi công
1. Nhà 3 gian kẻ truyền bê tông
4. Nhà 4 mái 8 mái kẻ truyền bê tông
2. Nhà 5 gian kẻ truyền bê tông
3. Nhà 2 tầng kẻ truyền bê tông
Tin tức
Liên hệ
Thống kê truy cập
Online:
4
Yesterday:
192
Today:
207
Total:
420.565
Trong tháng:
4.452
Trong tuần:
1.110
Bản PC
Hotline: 0979.737.535
Nhắn tin qua zalo
Nhắn tin qua Facebook
Bản đồ đường đi